Espace Bouvier
EN

1020 BOUVIER - QUÉBEC

Édifice distinctif situé à la porte d’entrée du secteur Lebourgneuf, un emplacement stratégique en bordure de l’autoroute Félix-Leclerc, facilement accessible par les grands axes routiers.


Avant du 1020 Bouvier
1020 Bouvier

Emplacement

Trois grands axes routiers
à proximité
  • Autoroute Félix-Leclerc
  • Autoroute Laurentienne
  • Autoroute Robert-Bourassa
Près des parcours Métrobus
du RTC
  • Métrobus 803

Pour Information

Caractéristiques
de l'immeuble

  • 6 étages

  • Superficie

    • Superficie par étage: 13 300 pi2
    • Superficie totale: 80 000 pi2
  • Spécifications techniques

    • Structure de béton
    • Hauteur des plafonds :
      11 pi (dalle à dalle)
    • Distance entre les colonnes:
      20 pi x 20 pi
    • Fenestration de 65% selon BOMA
    • 2 ascenseurs
  • Sécurité

    • Système de gicleurs automatiques et d'alarme incendie
    • Réseau de caméras de surveillance
    • Système de cartes d'accès
  • Mécanique

    • Confort assuré par un système de thermopompe à réfrigérant variable avec ventilo-convecteurs, pour une qualité de l'air conforme aux normes ASHRAE
    • Climatisation et chauffage silencieux
  • Services et commodités

    • Emplacement pour les vélos
    • Douches et vestiaires
    • Accessibilité aux personnes à mobilité réduite
    • Vaste stationnement extérieur
    • Stationnement intérieur disponible
    • Personnel d'entretien sur place
    • Service à la clientèle 24/7
Carte 1020 Bouvier
    1. Galeries de la Capitale
    2. Hôtel
    3. Clinique médicale
    1. Services financiers
    2. Quincaillerie
    3. Centre sportif
    1. Essence
    2. Restauration rapide
    3. Supermarché
Voir sur Google Map

Afficher dans
Google Maps

Conçu pour répondre à vos besoins

  • Espace modulable permettant diverses possibilités de design
  • Équipe de conception multidisciplinaire à votre service
  • Environnement stimulant favorisant la performance
  • Lumière naturelle abondante
  • Vaste stationnement

Aménagements typiques

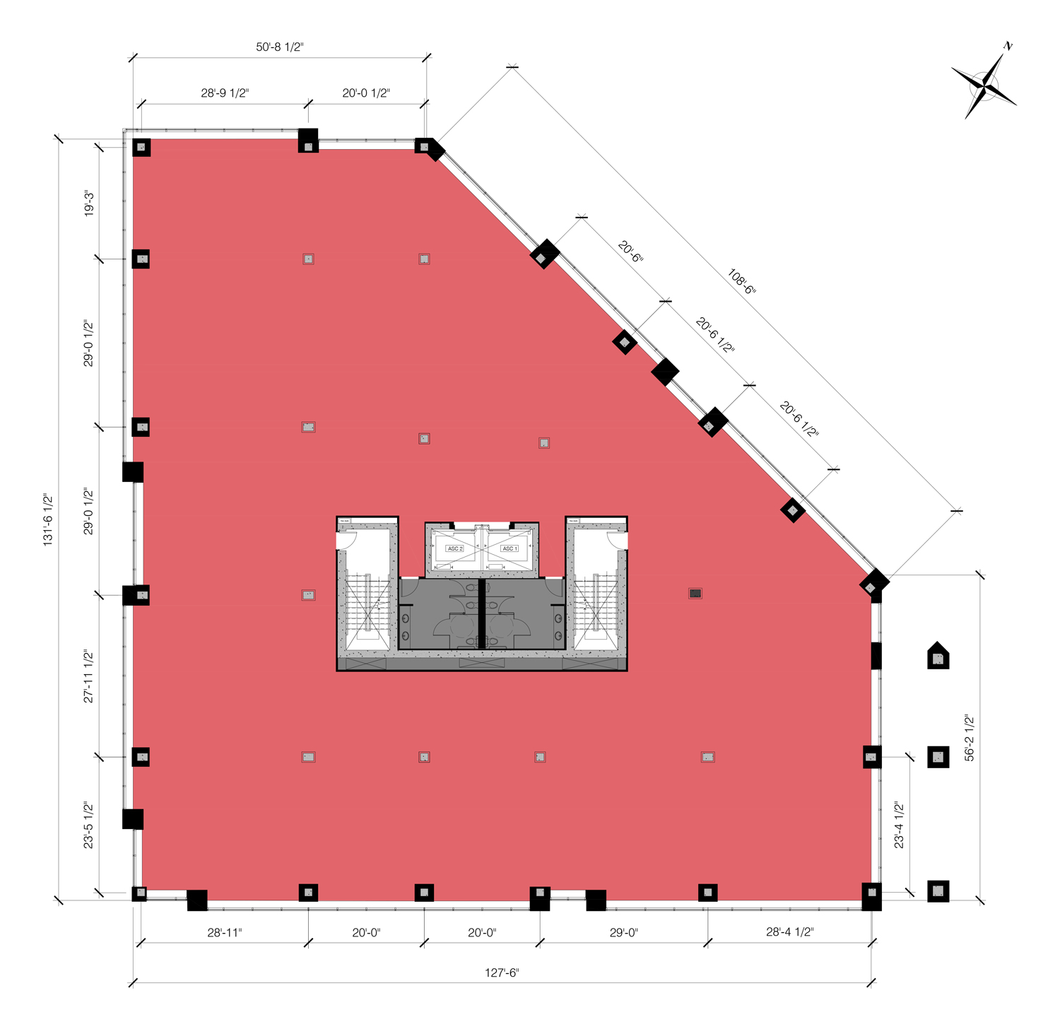
Plan d'étage typique
Plan d'étage typique
Plan typique d'aménagement 80% bureaux ouverts
Bureaux ouverts
Plan typique d'aménagement 65% bureaux ouverts
Bureaux fermés

Situez-vous stratégiquement

  • Positionnement central, en bordure de l'autoroute Félix-Leclerc (40),
    entre l'autoroute Laurentienne (73) et Robert-Bourassa (740)
  • Visibilité accrue
  • Partie intégrante d'un site commercial en développement
  • Accès facile au transport en commun
  • À proximité de quartiers résidentiels en plein essor
  • Grande mixité de services et d'entreprises dans le centre majeur d'activités Lebourgneuf

Associez-vous à un projet vert

Certifié LEED® Argent®
  • Construit en accord avec les principes
    du développement durable
  • Performance énérgétique optimisée
  • Souci d'écoresponsabilité
Badge Leed 2017 Argent
Haut de la page